|
QJB型低速潛水推流器又稱,潛水推流器,潛水推進器,QJB低速潛水推流器,QJB低速潛水推進器,QDT低速潛水推流器,QDT低速潛水推進器,氧化溝推流器,公司爲您提供QJB低速潛水推流器,新價格,廠家,選型,安裝,圖紙,設計,軸承,電纜線,軸承,機封,葉輪等,咨詢
三、
QDT型低速液下推流器的工作原理:
經驅動旋轉的葉輪,攪動液體産生旋向射流和軸向推流,形成的射流,利用沿着射流表面的剪切力來進行混合,使流場以外的液體通過摩擦産生攪拌作用;形成的推流,利用軸向推力将受控流體向前輸送。在旋向射流和軸向推流共同混合、攪拌和推流作用下,形成體積流,應用大體積的流動模式獲得必要的水體流速和需要的工藝流場。
|
|
QDT型低速液下推流器簡介:
QJB型潛水攪拌機主要由潛水電機、密封機構、葉輪、導流罩、手搖葫蘆、電氣控制等部分構成。攪拌葉輪在電機驅動下旋轉攪拌液體,使之産生旋向射流,并利用沿着射流表面的剪切應力來進行混合,使流場以外的液體通過摩擦産生攪拌作用,在極度混合的同時,形成體積流,應用大體積流動模式得到受控流體的輸送。
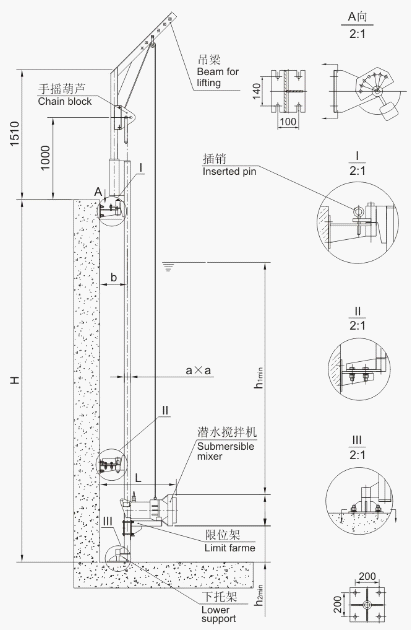
潛水攪拌機結構圖:
五、
QDT型低速液下推流器特點:
QJB型潛水推流器
混合型适用于污水處理廠的工藝流程中推進攪拌含有懸浮物的污水、稀泥漿、工業過程液體等,創建水流,加強攪拌功能,防止污泥沉澱及産生死角,是市政和工業污水處理工藝流程上的重要設備,在水處理工藝流程中,可實現生化過程中固液二相和固液氣三相的均質,流動的工藝要求。QJB型潛水攪拌機由潛水電機、葉槳和安裝系統等組成。根據傳動方式的不同,潛水攪拌機可分爲:混合攪拌和低速推流兩大系列。 混合攪拌系列産品常選用多級電機,采用直聯式結構,它與傳統相比,具有結構緊湊、能耗低、效率高、便于維便于維護保養等優點。葉輪制造精度高、推力大。QJB型潛水攪拌機系列産品适用于需要固液攪拌、混合的場合QJB型潛水攪拌機的結構:
1、QJB型潛水攪拌機結構緊湊、操作維護簡單、安裝檢修方便、使用壽命長。
2、QJB型潛水攪拌機葉輪具有佳的水力設計結構,工作效率高,後掠式葉片具有自潔功能可防雜物纏繞、堵塞。
3、QJB型潛水攪拌機與曝氣系統混合使用可使能耗大幅度降低,充氧量明顯提高,有效防止沉澱。
4、QJB型潛水攪拌機電機繞組絕緣等級爲F級,防護等級爲IP68,選用軸承和的電機防凝露裝置,使電機的工作更加安全可靠。
5、QJB型潛水攪拌機有兩道機械密封,材質爲碳化鎢-碳化鎢,所有外露緊固件均爲不鏽鋼。
6、根據工藝要求,直聯式QJB型潛水攪拌機可配用導流罩。
7、QJB型潛水攪拌機的不鏽鋼、碳鋼精鑄焊接葉槳,經優化設計葉片呈後掠式,效率高,具有自潔功能。
8、QJB型潛水攪拌機内部設有洩漏傳感器和定子繞組超溫保護報警裝置。
9、混合攪拌系列産品選用多級電機,采用直聯式結構,能耗低,效率高;葉輪通過精鑄或沖壓成型,精度高,推力大,外型美觀流暢,結構緊湊。
六、QJB型潛水推流器用途及适用範圍:
混合攪拌系列潛水攪拌機适用于各種水處理。工藝和工業流程需要保持固、液二相或固、液、氣三相介質均勻混合反應的場所。QJB型潛水攪拌機
1、污水(廢水)/活性污泥的混合
2、控制濃縮污泥分離
3、酸、堿中和及PH值調整工藝
4、防止顆粒在池壁和池底的凝結和沉澱
5、提高傳熱系統的效率
潛水攪拌機在下列條件下應能正常連續運行:
1、高介質溫度不超過40℃
2、介質的PH值在5-9
3、介質密度不超過115KG/M^3
4、長期潛水運行,潛水深度一般不超過20米
5、流速不低于0.15m/s
特别提示:
潛水攪拌機必須*潛入水中工作,不能在易燃易爆和強腐蝕性及高溫的環境中工作。鋼膨脹螺栓須按要求固定,安
裝完畢後,必須将電纜拉緊固定好。
針對特殊環境下的要求,我公司可爲用戶提供特殊設計。
|
|
七、QJB型潛水推流器型号意義:
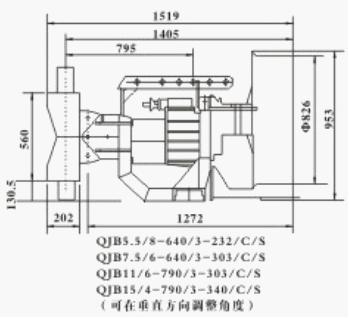
八、QJB潛水推流器能參數表:
QJB潛水攪拌機在額定電壓380V,頻率爲50Hz,繞組絕緣等級F級,防護等級IP68,工作制式條件下:
|
|
規格型号
|
電機功率
(kW)
|
額定電流
(A)
|
葉輪轉速
(rpm)
|
葉輪直徑
(mm)
|
水推力
(N)
|
重量
(kg)
|
|
混合攪拌系列
|
QJB0.85/8-260/3-740/C/S
|
0.85
|
3.4
|
740
|
260
|
163
|
55/58
|
|
QJB1.5/6-260/3-980/C/S
|
1.5
|
4.4
|
980
|
260
|
290
|
55/58
|
|
QJB2.2/8-320/3-740/C/S
|
2.2
|
5.9
|
740
|
320
|
582
|
74/77
|
|
QJB4/6-320/3-980/C/S
|
4
|
10.8
|
980
|
320
|
609
|
74/77
|
|
QJB1.5/8-400/3-740/S
|
1.5
|
5.6
|
740
|
400
|
382
|
76/80
|
|
QJB2.5/8-400/3-740/S
|
2.5
|
7.3
|
740
|
400
|
575
|
76/80
|
|
QJB3/8-400/3-740/S
|
3
|
8.6
|
740
|
400
|
642
|
78/82
|
|
QJB4/6-400/3-980/S
|
4
|
10.3
|
980
|
400
|
1010
|
80/84
|
|
QJB4/12-620/3-480/S
|
4
|
14
|
480
|
620
|
1230
|
240/245
|
|
QJB5/12-620/3-480/S
|
5
|
18.2
|
480
|
620
|
1420
|
240/245
|
|
QJB7.5/12-620/3-480/S
|
7.5
|
28
|
480
|
620
|
1963
|
255/270
|
|
QJB10/12-620/3-480/S
|
10
|
32
|
480
|
620
|
2361
|
255/270
|
|
|
注:是否配導流罩,由水處理工藝決定。在上表混合攪拌系列中,“重量”一列所标的兩個數字分别表示不帶導流罩和帶導流罩的重量;以上規格型号爲常規産,但不局限于上表,可爲客戶拓展設計新的或含特殊要求的攪拌機。
|
|
九、QJB型潛水推流器選型注意事項:
潛水攪拌機的選型是一項比較複雜的工作,選型的正确與否直接影響設備的正常使用,作爲選型的原則就是要讓潛水攪拌機在适合的容積裏發揮充分的攪拌功能,一般可用流速來确定。根據污水處理廠不同的工藝要求,潛水攪拌機佳流速應保證在0.15~0.3m/s之間,如果低于0.15m/s的流速則達不到推流攪拌效果,超過0.3m/s的流速則會影響工藝效果且造成浪費。所以在選型前首先确定QJB潛水攪拌機運用的場所,如:污水池、污泥池、生化池;其次是介質的參數,如:懸浮物含量、粘度、溫度、PH值;還有水池的形狀、水深甚至安裝方式等都對選型産生影響,同時還應考慮到節能因素,因爲這将影響到用戶今後的運行成本。可參考下面的潛水攪拌機流場圖。
爲保證潛水攪拌機取得佳效果,請使用方提供如下資料:
1、運用目的
2、池型
3、池尺寸
4、介質特性包括粘度、密度、固體物含量等。
潛水攪拌機所需要的配套功率是按容積大小,攪拌液體的密度、粘度和攪拌深度而确定的,根據具體情況應采用一台或多台攪拌機。
注:
1、選型問題,請與我公司技術部門。
2、潛水攪拌機必須*潛入水中工作,不能在易燃易爆的環境下或有強腐蝕性液體的環境中工作,小潛入深度900mm。
|
|
十、QJB潛水攪拌機選型方法參考資料:
1、根據圖1或表1确定待攪拌介質的污泥校正系數。
2、根據圖2或表2确定攪拌池的池型校正系數。
3、按每立方米清水所需耗功4.8W,乘以污泥校正系數,再乘以池型校正系數,得出每立方米待混合攪拌介質所需耗功的實際值,再乘以待攪拌介質的體積,得出整池待混合攪拌介質所需的功率。
圖1:淤泥校正系數曲線
Ⅰ-一次淤泥;Ⅱ-二次淤泥;Ⅲ-水解淤泥
表1:污泥校正系數表
圖2:池型校正系數曲線
表2:池型校正系數表
|
|
十一、QJB型潛水攪拌機的流場圖:
以下流速場是在清水中,邊界水流速度爲V=0.1m/s 工況下:
|
|
十二、QJB型潛水攪拌機的安裝尺寸圖及安裝示意圖:
潛水攪拌機可以有多種安裝方式,這裏提供四種通用的方式供選擇,尺寸可參考下表。我公司還可以根據用戶的要求作特殊設計。


|
型号
|
a
|
D
|
b
|
L
|
h1min
|
h2min
|
安裝系統
|
|
QJB0.85/8
|
Φ48
|
360
|
330
|
630
|
500
|
110
|
Ⅰ
|
|
QJB1.5/6
|
Φ48
|
360
|
330
|
630
|
500
|
110
|
Ⅰ
|
|
QJB2.2/8
|
Φ70
|
460
|
320
|
970
|
800
|
150
|
Ⅱ
|
|
QJB4/6
|
Φ70
|
460
|
320
|
970
|
800
|
150
|
Ⅱ
|
|
QJB1.5/8
|
Φ70
|
530
|
320
|
960
|
500
|
200
|
Ⅱ
|
|
QJB2.5/8
|
Φ70
|
530
|
320
|
960
|
500
|
200
|
Ⅱ
|
|
QJB3/8
|
Φ70
|
530
|
320
|
1010
|
800
|
200
|
Ⅱ
|
|
QJB4/6
|
Φ70
|
530
|
320
|
1010
|
800
|
300
|
Ⅱ
|
|
QJB4/12
|
Φ100
|
820
|
335
|
1150
|
1100
|
300
|
Ⅲ-1,Ⅲ-2
|
|
QJB5/12
|
Φ100
|
620
|
335
|
1150
|
1100
|
300
|
Ⅲ-1,Ⅲ-2
|
|
QJB7.5/12
|
Φ100
|
820
|
335
|
1280
|
1500
|
300
|
Ⅲ-1,Ⅲ-2
|
|
QJB10/12
|
Φ100
|
820
|
335
|
1280
|
1500
|
300
|
Ⅲ-1,Ⅲ-2
|
注:1、潛水攪拌機的安裝系統,可在無需排出池中污水的情況下,快速安裝和拆卸潛水攪拌機;
2、安裝系統I隻适用于池深<4m,機型爲QJBO.85/8和QJBl.5/6,且可在水平方向和垂直方向調節角度;當池深>4m時,應選用安裝系統II型。
3、安裝系統II、III導杆可沿水平方向繞導杆軸線旋轉,大轉角爲±60°;
4、當H>4m時需,在導杆中間添加一支撐架;
5、支撐架和下托架與池壁、池底均用膨脹螺栓或化學錨栓固定,無需預留孔;
6、客戶定貨時,請提供池深H及池型圖,以便确定導杆尺寸和支撐架個數;
7、安裝系統材質采用不鏽鋼和碳鋼防腐可供選擇;
8、多台攪拌機可共用一套起吊系統。
|
|


  
|
|
十三、QJB型潛水攪拌機運行實況:
和傳統長軸攪拌機相比,QJB型潛水攪拌機的優點在于可生産不同的流向。由攪拌機的不同安裝位置,可得到不同效果的多種流動模式。從而在池中創造更好的流動模式,消除攪拌死角。攪拌機所需要的配套功率是按池容積大小,介質的密度、粘度和挽排介質深度等确定的,根據其體情況,應選用一台或多台攪拌機。
爲了保證提拌機在不同池型中的運行高效節能.可參考下列的典型安裝形式。
圓形池:
該旋轉流動公式是筒單的一種。在相時較短的運行時間内就創造高的流速,在非溶性固體含量高的介質中,這是一種高效的攪拌方式。然而必須注意,較重的物質可能沉積在池底中央。
|
|
|
|
方形池:
如按下圖方式安裝攪拌機可在方形池形成高效的攪拌效果。當使用一台攪拌機時,池長寬比不大于5。否則應安裝多台攪拌機。若長寬比不大于2.5可得到佳運行效果。
|
|
|
|
|
|
如池寬小于5-8的葉輪的情況下,可按上圖安裝方式
|
在較大池中,攪拌機可按上圖安裝
|
考慮進出口
|
|
|
|
|
|
利用池壁反射
|
射流的交叉
|
使用多個攪拌機時,推薦使用
|
|
|
QJB型潛水攪拌機産品優勢與同類産品比較:
|
|
攪拌推流設備
|
市場同類産品
|
|
1.開發研制起點高,自主知識産權多
以提高國産裝備能力、爲已任,自主創新研發了滿足市場細分要求的系列化産品。擁有多項原創設計和多項技術,其機械性能、水力性能和降耗節能水平于。擁有一項國家發明。
|
1.技術落後、故障較高
同類産品,未有多大創新,采用的葉輪結構、傳動結構、導軌耦合座結構、密封結構等仍然是上世紀複制的技術,設備性能嚴重滞後污水處理工藝要求,不但沒有技術進步,而且故障較高。
|
|
2.克服了市場同類産品的缺陷,排除了市場同類産品的故障
1)解決了使用壽命短、需經常維修更換的技術難題;
2)解決了運行噪音大、振動大的技術難題;
3)解決了因污水中有雜物纏繞機械密封件而使密封不可靠的技術難題;
4)解決了減速傳動機構體積大、重量重、軸向長度長、傳動件容易損壞的技術難題;
5)解決了起吊裝置提升不靈活、容易卡死的技術難題;
6)解決了水下安裝座與混凝土地基固定不牢靠、容易松動,造成水下維修困難的技術難題;
7)解決了水下耦合座能實現對設備自動固定和夾緊的技術難題;
8)解決了葉輪平衡、防腐、幾何誤差、受力均衡等一系列技術難題;
9)解決了電纜線進線密封處因拽拉而漏水的技術難題;
10)解決了污水處理廠改造擴容需帶水安裝的技術難題。
|
2.缺陷一直存在,未見改進、故障居高不下,難以排除
多年來,市場同類産品一直存在着使用壽命短、減速機構容易損壞、運行不平穩、噪音振動大、動密封失效漏水、上下滑移卡死、不靈活、推流效果差、能耗高等問題。故障多、維修麻煩、維護成本高。
|
|
3.産品特色及技術優勢
1)玻璃鋼葉輪,高強度複合材料,整體式成型、耐腐蝕能力強、水阻小、重量輕、效率高,幾何中心對稱性好、動平衡度高,爲*;
2)微型潛水式傳動箱,結構緊湊、傳動平穩、體積小、重量輕、效率高、故障少、壽命長。
3)内置腔油潤滑動密封系統,密封可靠,*不受污水中污物的影響;
4)底座式承力方式,設備重力由底座承受,運行穩定,避免了傳統的導杆承力方式而引起的晃動和振動;
5)卧床式V錐吸振耦合座,V錐結構,能實現設備自動對中和就位、自動固定和夾緊;側面設置減振墊,以吸收振動,自然調适設備的就位狀态;整體卧床式布置,猶如嬰兒躺在搖籃裏,平穩和安全;
6)導軌式底座支撐結構,既是提升導向機構,又是吸振耦合座承力支撐,提升滑移穩定,支撐受力簡潔可靠,抵抗側向偏心而引起的沖擊載荷能力強;
7)電纜線設置防拽拉保護裝置,該裝置有兩部分組成,一是水下進線密封處輔助保護機構,保護進線密封不被拽拉損壞;二是水上防電纜線脫落機構,保護電纜線不會掉落、不會被葉輪纏繞;
8)組合式防卡死滑移機構,提升機構上設計軸套定位式雙軸承防塵滑輪,确保滑輪本身轉動靈活,不會發生輪緣摩擦兩面支撐件的情況;設備尾翼上設計适度的移動滑輪組,使其不存在與導軌發生自鎖的現象,保證滑移順暢;
9)桁架式帶水安裝裝置,該裝置爲*,應市場用戶要求而開發研制,直接在水上固定安裝設備。
10)幫助用戶科學選型,配置合理化功率;
11)一般配置和優良配置,适合用戶需求
|
3.同類産品技術狀況
1)常規材料葉輪,或重量大,或耐腐蝕性弱,或剛性差,動态工況下葉片變形,或韌性低,受不平衡沖擊力易折斷。特别是葉片與輪毂分體式組合,螺紋式聯結,不僅輪毂結構複雜,體積大,重量大,且難以保證兩葉片中心對稱的幾何精度,更難保證長時間工作螺紋不松動。另外,葉片的造型千姿百态,很多未經嚴謹的設計和科學的論證,而因水力性能差、推流攪拌能力低,能耗高;
2)通用減速轉動機構,适應潛水工況的能力不強,且結構閑散,體積大,傳動效率低,故障率高,壽命短;
3)敞口式污水潤滑機械密封結構,機械密封件靠污水潤滑,直接裸露在污水中,易受水草、纖維、懸浮顆粒的纏繞和損傷;
4)導杆承力結構,設備重量由水下導軌承受,導軌較長,中下部受力,剛性不夠,易形成晃動和振動。
5)水下耦合座采用平闆式托架或坐凳式托架,這種結構無法實現對設備自動固定和夾緊,振動在所難免。設備在平闆式托架或坐凳式托架上運行,其穩定性效果與卧床式V錐吸振耦合座相距甚遠。
6)無電纜線防拽拉保護裝置,電纜線進線密封處無輔助保護裝置,易因拽拉而影響密封效果。上部無防電纜線脫落機構,電纜線會掉落、或被葉輪纏繞;
7)提升滑移組合輪易與導軌形成自鎖和卡死現象,影響操作的方便和靈活。
|
産品包裝圖
木箱包裝
物流托運
定制說明
選型需提供的參數:池子類型,池子的長*寬*高
詢價時需要提供:電機功率,葉輪直徑,是否需要安裝系統,1型手提式或Ⅱ型手搖葫蘆型安裝系統(注明安裝系統材質)。
車間一角
購貨保障
購買須知
-
1、廠家貨源
本公司所有産品都采用NSK軸承,潛水橡膠電纜,F級等級絕緣電機,防護等級IP68.
-
2、關于檢測
所有設備均檢測電機絕緣,空載電流,實載電流,動靜平衡測試。
-
3、關于客服
24小時客服在線,:,
5、關于發貨
本公司所有設備均采用木箱包裝,安裝系統采用編織袋包裝,均采用公路運輸,承諾三到七個工作日到貨。
|