|
WLS型無軸螺旋輸送機
|
|
|
|
産品簡介:
|
|
WLS型無軸螺旋輸送機
被廣泛應用于市政污水處理和工業生産等領域。
WLS型無軸螺旋輸送機
被設計成無軸的,U型輸送槽是封閉的但上蓋可以打開😘。 因此,特别适合用于輸送有污染的、讨厭氣味👋的、危險的、架橋的以及清潔的物料。
WLS型無軸螺旋輸送機
是通過一個強力旋轉鋼質螺旋來輸送物 料,能有效傳送幹燥的、潮濕的、有粘性的、粉末狀的、粗糙的物料。
WLS型無軸螺旋輸送機
的設計能有效地防止堵塞和纏繞物的影響。這種🏃🏿♀️➡️設計 使輸送機更方便地輸送不同尺寸的物料。
|
|
使用範圍:
|
|
WLS型無軸螺旋輸送機
主要适用于污水處理廠輸送格栅栅渣、污泥脫水🔞機的泥餅等等。
|
|
産品型号說明:
|
|
|
|
特點:
1、構造簡單,輸送槽中無軸承,物料輸送流暢;
2、整個輸送過程在封閉的輸送槽中進行,物料不會外溢,避免二次污染;
3、無軸螺旋體采用特殊加工工藝整體成型,一次成型長度超過2.5米;
4、低速運行,噪音小,能耗低,免維護。
|
|
安裝形式:
标準型爲地面固定水平安裝式或傾斜安裝式,也可按用戶要💞求提供吊挂式、地面和吊挂混合固定傾斜式、移👽動式☠️(可繞進料口軸線回轉)及其它特殊安裝方🤑式。
|
|
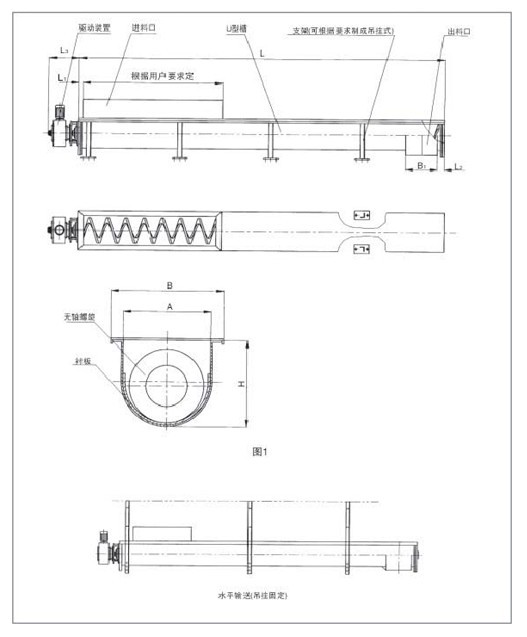
構造及輸送過程:
WLS型無軸螺旋輸送機由無軸螺旋、U型槽、襯闆、蓋闆、進出口和驅動🙂↕️裝置組成。物料由輸入,經螺旋推動後由出口輸🤶🏾出。
|
|
|
|
主要性能參數:
|
|
|