GSHZ回轉式細格栅除污機運行教程-南京蘭江泵業有限公💫司

          産品列表PRODUCTS LIST

          首頁 >産品中心 >機械格栅機 >格栅除污機 >GSHZ-700GSHZ回轉式細格栅除污機運行教程

          GSHZ回轉式細格栅除污機運行教程

          簡要描述:

          回轉式機械格栅、回轉式格栅 、格栅除污機 、反撈式格栅除💫污機✍🏻 、旋轉式格栅除污機、雙格栅式格栅除污機、轉鼓格栅除污機、y型除污器、移動式格栅除污✋機、粉碎式格栅除污機、轉筒式格栅除污機、回轉格🧑🏽‍❤️‍💋‍🧑🏻栅除污機、反撈式格栅除污機、GSHZ格栅除污機GSHZ回轉式細格栅除污機運行教程

          分享到: 1
          在線留言
          GSHZ回轉式細格栅除污機運行教程

            GSHZ回轉式細格栅除污機運行教程 GSHZ回轉式細格栅除污機運行教程

          機械格栅 産品特點

              GSHZ型回轉式格栅除污機 的 大 點是自動化程度高、分離效率高、動力消耗小、無噪👼🏾音、耐😥腐蝕性能好,在無 人看管的情況下可保證連續穩定工作,設置了過載 保護裝置,在設備發🤶🏾生故障時,會産😁生聲光報警并自動停機,可以避免設備超負荷工作。
              GSHZ型回轉式格栅除污機 可以根據用戶需要任意調節設備運行間隔,實現周期性運轉;可以根據格栅前後液位差自動控制;并且有手動控🔞制功能,以方便檢修。用戶可根據不同的工作需要任意選用。
              由于 GSHZ型回轉式格栅除污機 結構設計合理,在設備工作時, 自身具有很強的自😵‍💫淨能力🧑🏽‍❤️‍💋‍🧑🏻,不會發生堵塞現象, 所以日常維修工作量很少。

          1、粗、細格栅合爲一體,節省設備投資,減少一台格栅井的占地面積。 

          2、粗、細格栅一體機可滿足過濾精度的更高要求( 小👨🏻‍🏭栅隙可達3mm)。 

          3、具有自卸渣功能。 

          3、采用軸裝式減速機,傳動機構緊湊。 

          4、采用電機過載保護裝置, 可靠。 

          5、操作簡單、故障率底、使用壽命長。 

          6、結構簡單、安裝維護方便。 

          7、自動化程度高,能實現遠程監控。 

          微信圖片_20180629082211

          微信圖片_20180616145030

           

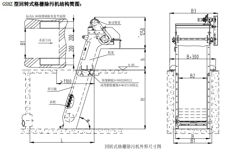
          GSHZ型回轉式細格栅 回轉式機械粗格栅 用途

              GSHZ型回轉式格栅除污機 爲鏈傳動耙齒回轉式機械格栅除污機,适用于污水和🔞雨水🛀🏼泵站及污水處理廠, 攔截和去除污水中較大雜質、漂浮物和懸浮物,減輕後續工序負荷。 
          構造及工作過程 
              回轉式格栅除污機 是由若幹耙齒裝配在回轉鏈上,随着鏈條做回轉運動👯🏾‍♂️,将栅前攔截的污物帶出水面,并随着鏈條的回轉運動将污物自🧛🏾‍♀️卸到格栅後的輸送機中,液體則通過耙齒間形成的栅隙流🏃🏻‍♀️過去, 整個工作狀态連續進行👨🏻‍🏭。 

          機械格栅 設備俗稱

               回轉式機械格栅、回轉式格栅 、蘭江格栅除污機 、反撈式格栅除污機 、旋轉式格栅除污機、雙格栅式格栅除污機、不鏽鋼機械格栅除污機 旋轉機械格栅除污機 GSHP機械粗格栅 、粉碎式格栅除污機、轉筒式格栅除污機、回轉格栅除💔污🤶🏾機、反撈式格栅除污機、GSHZ格栅除污機

           

          蘭江回轉式機械格栅結構圖

           

           

          undefined

          undefined

           

          不鏽鋼機械格栅除污機 旋轉機械格栅除污機 GSHP機㊙️械粗格栅  型号表達

           

           

           微信圖片_20180704110239.jpg

          微信圖片_20180702141917_看圖王.jpg

          微信圖片_20180702142216_看圖王.jpg
           




          本公司蘭江GSHZ500耙式格栅除污機廠家價格 *   GSHZ型回轉式格栅除污機 主要産品特點 
          (1)結構緊湊,整機性能好,通水面積大,運行穩定可靠。 
          (2)操作簡單,清污效果好,效率高,壽命長。 
          (3)維修方便,栅體水下部分無固定螺絲。 
          (4)格栅回轉循環、撈渣、除污工作實行全自動控制。 
          (5)具有自動、點動、急停、切斷等控制功能,便利運行與維💌護😺保養。 
          (6)每台清污機配置一套控制箱(戶内),電氣元件全部采🙉用産品,并可根據用戶要求預留PLC接口。 
          (7)具有機械、電氣雙重過載保護裝置。 
          A.機械保護措施:在傳動鏈輪中設有 銷,能在過載情況下瞬間切斷 銷,預防傳動件損壞。 
          B.電氣保護:在電氣設計中設有過流保護,保證在設備出現故障後能有效地保護電機不被燒壞。 
          (8)清污機的鏈條采用不鏽鋼材料,鏈條的小轉輪也爲不👱🏼‍♂️鏽鋼👋材料;鏈條水下導向部分采用滑道方式,無須加潤滑油🙂‍↕️,從而🤶🏾使鏈😌條不易被污物卡住。 
          (9)驅動裝置設有防護罩,既滿足室外安裝的要求,又便于檢查和維修; 
          (10)在鏈條和耙齒之間設置鏈闆,與設備的堵水邊角鋼💌形成~封✍🏻閉結構,使齒耙鏈成爲封閉式鏈條,從而阻止了垃🚶🏾‍♀️‍➡️圾進入機内運💕行軌道,防止鏈條梗死等故障; 
          (11)當齒耙鏈運行到設備後部時,齒耙間發生相對位移👹,進🙉行自清理運動,栅渣落入栅渣小車中。因而不會發生堵塞現🛀🏼象,故日常維修的工作量很少且格栅底部不會有污物堆積死角。 
          (12)設備進行安裝時,與溝壁接觸的兩側用橡膠密封😁帶密封,并用🧎🏻‍♀️‍➡️鋼壓條固定;底部耙齒鏈前設有一平闆及橡膠😵‍💫密封💌帶,達到設^備與土建密封,防止水中雜質流漏。 
          (13)在設備上部兩側設有檢修孔闆,即使由于大的雜物使耙齒及其它部件損壞,也隻要在工作平台更換損壞的耙齒😁和零件,勿需水下維修,不影響過水流量。 
          6.材質 
          格栅框架        碳鋼防腐 
          耙齒            不鏽鋼(SS304) 
          傳動部件        不鏽鋼(SS304) 
          7. 驗收标準 
          設計、制造、試驗及驗收均執行建設部行業标準CJ/T3848-1995〔平面格栅🧑🏾‍🎄除污🤶🏾機〕。 
          8.其他技術說明 
          8.1出廠檢測與驗收 
          蘭江每台設備經檢查試驗合格,并附有産品合格證、使用⛹🏻‍♀️維護說明書、外購件的質保書和合格證。 
          設備出廠前,在廠内進行整機空載試運轉,檢驗項目🙈應👯🏾‍♂️包括:外🙂‍↕️觀檢查、各種材料的檢驗、齒耙額定載荷的檢測、鏈條✡️各鏈闆與銷軸的連接檢查、機座的焊接和緊固件連接的檢查、噪聲的檢測、以及其他項目的檢測。 
           14.jpg

          13


          8.2現場安裝與驗收 
                 8.2.1設備到現場後,我方的技術代表到工作現場負責👋安裝。 
                 8.2.2在全部設備安裝後,我方負責進行運行調試和現場測試,并進😺行工作現場培訓。調試後,清污機空轉試驗不少于4小時。測試内容及測試結果滿足标書🙂‍↕️的各項技術要求,并得到買方的認可🙂‍↕️。測試記錄交予買方。如測試結果不符合要求,我方負👩🏽‍🐰‍👩🏿責免費更😁換。現場測量工具由我方自備。  
          8.3銘牌與标志 
          銘牌固定在明顯的位置。銘牌内容如下: 
          設備名稱、設備型号、主要技術參數、電機功率、電壓等🧜🏼‍♂️級🏃🏻‍♀️、出😘廠日期、出廠編号等。 
          銘牌裝在設備合适、顯著的位置上。 
          8.4 運輸、包裝 
          我方保證運輸過程中設備均有牢固的包裝,防腐層不會損壞,确保設備 到達交貨地點。 
          8.5耗材和工具 
          我方提供設備中 要的随機耗材、工具,并按質保期内的用💁🏼‍♀️量列出耗材的名稱、數量,并按此内容供貨😵‍💫。 

           

          價格說明

          聯系人
          在線客服
          掃碼關注我們
          用心服務 成就你我