回轉機械格栅制造廠家-南京蘭江泵業有限公司
    <abbr></abbr><blockquote id="3epv_5ko_m5lq"></blockquote>
          
          

          産品列表PRODUCTS LIST

          首頁 >産品中心 >機械格栅機 >GSHZ回轉格栅 >GSHZ-900回轉機械格栅制造廠家

          回轉機械格栅制造廠家

          簡要描述:

          2、有過載保護裝置,運行可靠。
          3、通過運行軌迹變化完成卸渣,效果好。
          4、Z小間隙1mm,是典型的細格栅。
          5、齒耙強度高,有尼龍與不鏽鋼兩種材質供選擇。回⛹🏻‍♂️轉機械格栅😵‍💫制造廠家
          6、整機供貨。

          分享到: 1
          在線留言
          回轉機械格栅制造廠家

           

          ·機械格栅技術參數

           

          注:1、表中過水流量均在:栅前水位h=1m/s的前提下。回轉機械格栅制造廠家
          2、上表功率均在耙齒移動速度V=2m/min情況下。回轉機械格栅制造廠家
          ·型号表示方式

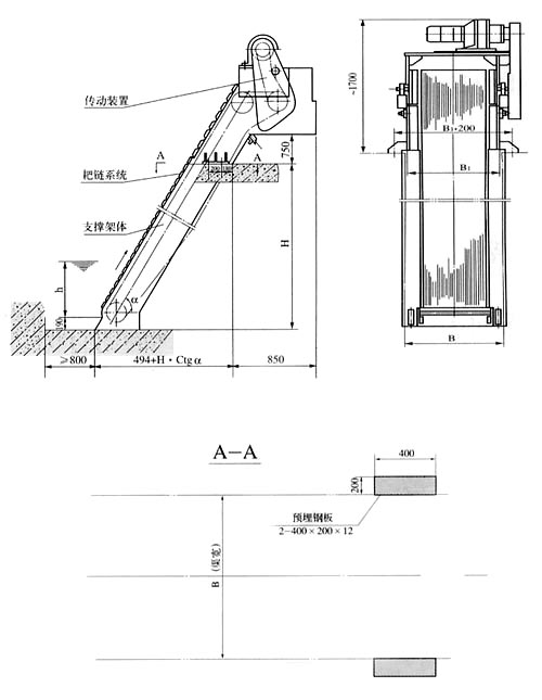
          ·外形及尺寸


          ·訂貨說明

          1、注明井深H及齒隙b。
          2、安裝角度60°—80°,推薦75°,如需其它安裝角應特殊訂貨。回轉機械🧛🏾‍♀️格💑🏾栅👌制造廠家
          3、存放、輸送或壓榨垃圾的配套設備可另訂。
          4、介質溫度≤ 60℃ ,特殊水質應注明。
          5、當B>1500時,應考慮兩組鏈條由一個傳動裝置拖動。機械格栅清污機

            ·特點
          1、無栅條,諸多小齒耙相互連接組成一個碩大的旋轉面,撈渣*。
          2、有過載保護裝置,運行可靠。
          3、通過運行軌迹變化完成卸渣,效果好。
          4、小間隙1mm,是典型的細格栅。
          5、齒耙強度高,有尼龍與不鏽鋼兩種材質供選擇。
          6、整機供貨。 

          聯系人
          在線客服
          掃碼關注我們
          用心服務 成就你我
            <abbr></abbr><blockquote id="3epv_5ko_m5lq"></blockquote>