JBJ-350垂直軸式攪拌機-南京蘭江泵業有限公司

    1. 産品列表PRODUCTS LIST

      首頁 >産品中心 >混合攪拌機 >JBJ漿式攪拌機 >JBJ-350JBJ-350垂直軸式攪拌機

      JBJ-350垂直軸式攪拌機

      簡要描述:

      JBJ-350垂直軸式攪拌機是目前、理想的機型,具有自動化程度高🛀🏼、攪🔞拌質量好、效率高、能耗低、噪音小、操作方便、葉㊙️片使✡️用壽命長✍🏻,維修保養方便等優點。

      分享到: 1
      在線留言
      JBJ-350垂直軸式攪拌機

      (本公司專業生産攪拌機,特殊規格和要求可定制,歡迎👩🏼‍❤️‍👨🏾咨詢)

       

      一、 JBJ-350垂直軸式攪拌機 用途與簡介
          折槳式攪拌機是給水、排水工程制備混凝劑、助凝劑、消毒劑和石灰乳液的常用攪拌設備。
         攪拌器槳葉轉折45度,液流産生軸向分流和環向旋👱🏼‍♂️流。整機采用帶電機擺線針輪減速機直接傳動,結構簡單、緊😝湊、安設于水池中心,運行平穩,溶解效率高。

       

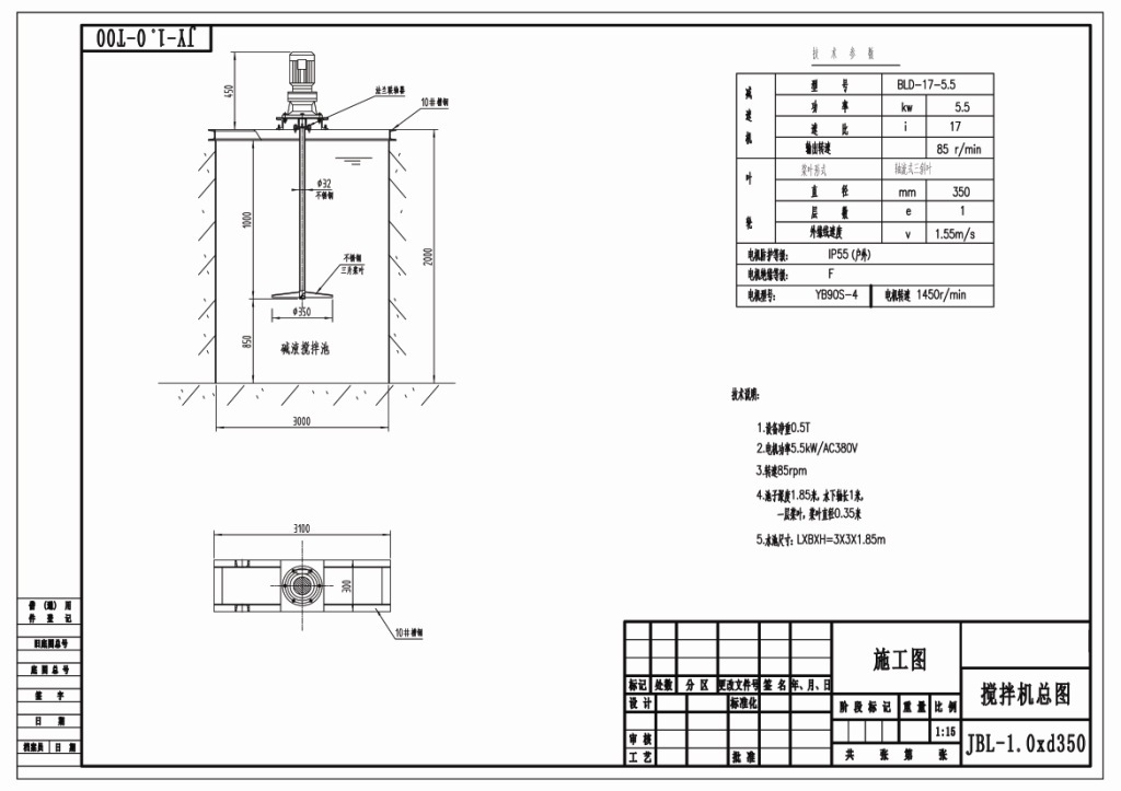
       二、 JBJ-350垂直軸式攪拌機 規格及技術參數

       wKhQuVMdnPmEcGQeAAAAAM6MS44460

       

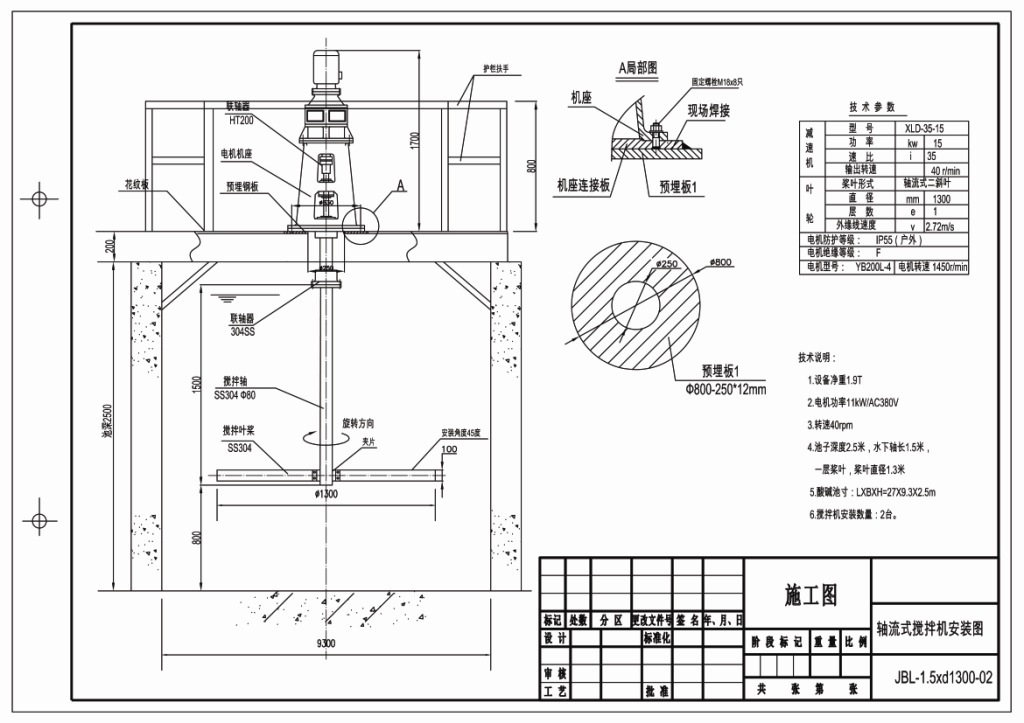
          現場安裝圖:

       

      爲客戶設計的工程施工圖紙



       

      加藥攪拌機的選型方法

          加藥攪拌機是一種廣泛應用的設備,它融合了流體力學、傳熱、傳質和化學反應等多種過程的機械✍🏻裝置🧎🏻‍♀️‍➡️。由于加藥攪拌機是機械能量的裝置,直接關系到産品質量、耗能等。因此加藥攪拌機的選型方法至關重~要。

      本文根據多年的加藥攪拌機研究和現場使用經驗從🙂‍↕️攪拌機的分類、形式、使用條件、使用範圍、攪拌過程能量分配🧎🏻‍♀️‍➡️和選擇應用幾個方面作一闡述,以方便廣泛用戶選用。

      一、加藥攪拌機在化工生産中的用途

      化工生産中的各種工藝過程涉及到各種不同的物料,各種不同的攪拌目的,所選攪拌器 的不同,工藝過程種類多,攪拌的用途也多。

      1、液體互溶

      兩種或數種液體的互溶、混合,但是均相液體的攪拌又應區分相混合物中是否進行化學反應,對于沒有化學反應的情況,通常稱爲互溶液體的調和👾或調勻😌。對于兩種或數種互溶液體間^存在化學反應的情形,如一些換位反應、加👀成反應,爲了加速反😈應和使反應*,也應進行攪拌,這種攪拌與互溶液體中不存在的化學反應的攪拌👨‍🦰不同。

      加藥攪拌機的好壞一般通過混合時間來衡量,所有的混合時間越短,攪拌機的選擇就越好。

      2、互不相溶的液體分散

      這種操作目的是互不相溶的液體之間互相接觸,相互充分分散,以有利于傳質或化學反應,或制備懸浮濁液和乳化液。

      在攪拌作用下進行萃取。傳質或化學反應,其評價指标就是😍反應時間,而這時攪拌的作用是使液相😺分散😥細化👩🏽‍🐰‍👩🏿,增大👋液體的接觸面積,增大傳質系數和🎅🏿反應速度,在制備懸濁液和乳🤶🏾化液時💫,攪拌使液體細化,增大了相對接觸面積。

      3、氣液相的接觸

      這種攪拌的作用于不互溶的液體基礎類此,是反👩🏼‍❤️‍👨🏾應成爲細微氣泡,在液相中均勻分散,形成穩定的分散質,或✍🏻提高傳質系數,增加液體吸收氣體,還有氣液發生化學反應。

      其評價指标就是其他流速一定時,其他在液體中的分😁散效果好,傳質速率高。

      4、固液相分散

      固液相的攪拌機用途廣泛,有時制備均勻的懸乳🙂‍↕️液💞,有時👹是固體的溶解,有時是固液之間發生化學反應😗,有時是固體在液體中洗滌,有時飽和溶液中析出結晶等,這種過程👿雖然目的不同👺,但是對流體的狀态都是共同的,就是固體顆粒在液體中均勻地懸浮起來。

      其評價指标就是固體懸浮顆粒在液體中的懸浮程度,好爲🧛🏾‍♀️所💌有的固體顆粒在液體中*均勻懸浮。

      5、加強傳熱

      有些液體需要加熱或者冷卻,通過攪拌提高液體的👋傳熱示數或者液體的溫度均勻。有時候除了上述之外還有化學反應過程中的傳質過程,伴有的傳熱,這種評價指标是指時間越短越好。

      攪拌器選型

          攪拌過程對攪拌器的要求各有不同,攪拌過程千差萬👯🏾‍♂️别,使👹用的攪拌器也是多種多樣,以下介紹幾種常見的攪拌器形🔞式。

      1、推進式攪拌器

      推進式攪拌器是常用整體鑄造,加工方便,結構類似輪船的✡️螺旋槳推進器,常用三片槳葉構成,我國三葉推薦攪拌💘器的國标爲 HG5-222-65.

      推進式攪拌器直徑取反應釜 内徑的 1/4-1/3 ,切向線速度可達 5-15m/s, 轉速一般爲 300-600r/min, 高轉速可達 1750r/min, 一般說小直徑取高轉速,大直徑取低轉速。攪拌時能使所🙂‍↔️有物料在反應釜内循環流動,所起的作用👻以容~積循環爲主,剪切作用小,上下翻騰效果好,當采用擋✋闆或導流筒則軸向循環更好。

      2、漿式攪拌器

      一種結果簡單,加工方便的攪拌器,共兩片槳葉,槳葉安裝💯形式可以是平直槳葉和拆葉槳葉兩種。平👽直葉就是葉面與旋轉方向互相垂直,拆葉則是與旋轉放血形成一定夾角。國家标準爲 HG5-220-65.

      漿式槳葉一般直接選反應釜内徑的 1/3-4/5, 一般取 1/2, 不宜過長,因爲漿式攪拌器會消耗很大的功率。漿👧🏾式攪拌機一般轉速較低,在 20-80r/min ,圓周速度在 1.5-3m/s

      3、框式攪拌器

      框式攪拌器可看做漿式的變形,水平的槳葉與垂直的槳😺葉連接形成一個方框。框式攪拌器也有多種形式,可參見标準 HG5-757-79.

      框式攪拌器的框直徑都比較大,通常其直徑取反應釜内徑👋的 2/3-9/10. 線性速度約 0.5- 5m /s ,轉速一般控制在 30-80r/min 。用二級減速機可以控制在 3-10r/min 之間用作水處理工藝中的絮凝沉澱過程。

      環保行業的水處理工藝中有多個環節用到加藥😁攪拌機,比如化學藥劑的溶解配備,絮凝過程等多🚶🏾‍♀️‍➡️個環節,本文希🥑️望能給廣ˇ大水處理客戶對加藥攪拌機的選型做一建議,攪拌環境千差萬别,以上僅爲個人觀點,如有不妥之處還望批評指正。

       

      特殊說明

             攪拌機詢價或訂貨時請提供以下數據:

      • 1、型号、功率、速比、轉速、軸直徑、軸長度、葉輪直徑、葉片數,軸及葉輪的材質、到貨地點等,隻有數據齊全我們才能給您準确報價。

      • 2、或者提供攪拌容器的長、寬、高尺寸數據及攪拌介質性👋質。

       服務承諾:
        産品:産品三包,終身維修。
        咨詢:您可以通過、傳真、、網絡、來信等查詢或咨詢有關信息将有專員爲您服務。
        選型:根據您的要求爲您選用佳型号。
        安裝:以您的時間安排爲準,安裝調試直至您滿意㊙️。
        服務:将爲您購置的産品建立專業檔案定時或按您的要求對産品進行檢測。

      聯系人
      在線客服
      掃碼關注我們
      用心服務 成就你我